新築戸建 セセラの家 高槻市南庄所町Ⅰ 1号地(全2区画)
東南角地×家事ラク間取り
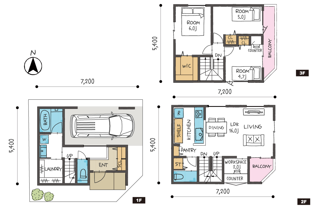
◆【ビルトインガレージ】愛車を雨風から守れて汚れにくい
◆【家事ラク動線】「洗う・干す・しまう」がワンフロアで完結
◆【南面開口】2階LDK+バルコニーでプライバシー性と明るさを両立
◆【ワークスペース】LDKに便利なワークスペースあり
◆【収納充実】WICやパントリーなど多彩な収納計画
◆【子育て環境】桃園小学校・第一中学校区
◆【安心構造】耐震等級3の地震に強い家
高槻市南庄所町の、落ち着いた住宅街の一角。
東側約5m、南側約4mの道路に面した、開放感のある角地ポジションで、車の出し入れもしやすく、陽当たりと風通しの良さが魅力の住まいです。
徒歩圏には、スーパーやコンビニなど、毎日の買い物に便利な環境。
通学指定校の高槻市立桃園小学校、高槻市立第一中学校までは徒歩圏で子育て世帯にも安心してお住まいいただけるエリアです。
間取りは3LDKプラン。1階はビルトインガレージと水まわりをまとめたフロア構成です。
玄関にはシューズクロークを設置。家族の靴まとめて収納できる広さです。バスルーム・洗面室とランドリールームが近接しているので、「脱ぐ→洗う→干す→しまう」がワンフロアで完結し、毎日の家事時間を短縮できます。
2階はLDKを中心にしたパブリックスペース。キッチン背面には収納棚やパントリーを設けており、食器やストック品をすっきりしまえるため、いつでも片付いた状態をキープしやすいのもポイント。
南側にはバルコニーがあり、ダイニング・リビングから明るい光が差し込む心地よいリビング空間が広がります。さらに、約2帖のワークスペースをプランニング。カウンター付きのこもり感のあるスペースで、在宅ワークや勉強などライフスタイルに合わせて多目的にお使いいただけます。LDKの一角にありながら、階段周りで緩やかにゾーニングされているため、集中したい作業にもぴったりです。
3階には居室が3部屋。主寝室にはウォークインクローゼットを備え、季節物の衣類や布団などもまとめて収納できます。
全居室に収納を設けているので、家族それぞれのプライベート空間を確保しながら、すっきり片付く暮らしが実現します。バルコニーも備えており、寝室から外の空気を感じられるのも魅力。
建物は耐震等級3を取得し、地震に強い住まいを実現しています。また、第一種換気システムを採用した仕様で、24時間計画換気により室内の空気を常に入れ替え、気密・断熱性能とあわせて一年を通して快適な室内環境を保ちやすいのも特徴です。
便利な生活環境と、家事動線・ワークスペース・収納計画など快適な間取りプランが融合した高槻市南庄所町Ⅰ 1号地。ぜひ現地とあわせて、周辺環境の雰囲気をご体感ください。
PLAN間取図
- PLAN
- 3LDK
- 土地面積
- 56.30㎡
- 床面積
- 1階 34.26㎡
2階 38.47㎡
3階 34.02㎡
合計 106.75㎡

LAND PLAN区画図
- 土地面積
- 56.30㎡

SPEC仕様
【床下の冷たい空気を完全シャットアウト】
床からくる冷たい空気を取り込まないようにする為、床下、床上をWで断熱。
W断熱にすることで、床暖房をいれなくても快適な暮らしを可能にしました。
【土間部分もしっかり断熱】
玄関土間や1階ユニットバス部分も床からの冷気をしっかりとシャットアウト。これにより家全体が魔法瓶のようになり外気温に左右されず、室温を逃さない家づくりが可能になります。
【気密性の高い断熱材】
吹き付けウレタンフォームは、細い隙間にも断熱材を吹き付けることができるため、断熱性に加え高い気密性が確保できる。屋根と壁内に充填することで、外気温に左右されない上、気密性を高めることもできます。その為、室内の温度を保つことができ、冷暖房効率が高まり、1年中快適に過ごすことができます。
【窓を開けるよりも快適!室内の温度と湿度を変えずに換気が可能】
第一種全熱交換型換気システムは、外気を吸排気する際に、熱交換を行うことで外気温の影響を受けずに室内の空気をキレイにすることができる。外気温を室内温度に近づけて室内に取り込む為、熱ロスが少なくランニングコストを抑えます。全部屋の空気を確実に入れ替えてくれる為、VOCを除去し、換気不足のCO2上昇による集中力、記憶力の低減を抑えてくれるので、お子様の勉強もはかどります。
【結露が生じにくい】
優れた断熱性能と気密性能を兼ね備えた樹脂サッシ窓。アルゴンガス入りペアガラス (Low-Eガラス)と高断熱樹脂フレームで、熱貫流率をとことん低減。住宅のエネルギー効率を大幅に向上させ、さらに室内の結露を軽減することも可能です。結露を防ぐことでカビ・ダニの発生も抑えるので、アレルギーや喘息症状がある方におすすめです。
【断熱性能が高い玄関扉】
「ヴェナートD30 D2仕様」は、断熱性能が高いグレードの玄関扉です。
意匠性を確保しながら、北海道のような寒冷地でも外気温に左右されない熱損失計数をクリア。
【少しの隙間も逃さずブロック】
木造工法により発生する柱と床の隙間をひとつひとつ全てコーキングすることで隙間を埋め、建物内の気密を高めています。
【配管周りの気密性を簡単&確実に高める】
配管周りに伸縮加工したポリエチレン素材のドームパッキンなどをパイプとの密着部分に設置し、さらに防水テープを貼り、気密性を高めています。
【床一面で家の重みを支える】
地盤全体にまんべんなく鉄筋コンクリートを流し込んでつくる『ベタ基礎』。柱や壁はもちろん床面部分も分厚い基礎で支えられているので、建物の重さが分散されやすく耐震性にも優れています。地面全体をコンクリートで覆っているため、湿気が建物に伝わりにくく、シロアリ被害も防ぎやすくなっています。
【躯体を壊さずメンテナンス可能】
サヤ管工法は、あらかじめ管を通すルートを作っておくことで、経年により設備機器などの交換が生じた際に、躯体を壊さずに配管のし直しができる画期的な工法です。
【建物の倒壊から身を守る『耐震等級3』】
建物の耐震性能は、国が定めた耐震等級によって評価されます。等級は1から3まであり、最高ランクの等級3は等級1の1.5倍の耐震性能を備えています。
等級3の建物は、震度6強から7の大地震でも軽い補修程度で住み続けられるレベルで、消防署や警察署などの防災施設にも採用されています。
【地震から家族と家を守る『制振ダンパー』】
『耐震』で強められた家は、地震による倒壊からは家を守ることができますが、揺れに対するダメージからは家を守ることはできません。
それほど規模の大きくない地震や大地震時の余震等が繰り返し被災すると大地震と同程度のダメージを受けてしまいます。これらに対応する為、「セセラの家」は油圧式制振ダンパーを採用しています。
大きな地震エネルギーを吸収し、衝撃を和らげ、家へのダメージを大きく軽減させます。高品質・高性能な油圧式制振ダンパーが、お客様の家をしっかりと守ります。
【耐震等級だけで満足していませんか?】
現在の建築基準法では木造2階建・延床面積500㎡以下の建築物においては、確認申請時の構造計算が義務化されていません。義務でないならばできるだけシンプルな計算方法が良いと構造計算を簡易に済ましている会社は全体の80%にも及ぶと言われています。
「セセラの家」では1棟1棟、建物にかかる荷重の計算、材料の強度特性の評価、構造全体の解析を行い、各部材の応力が許容範囲内であるかを確認します。この計算を行うことで、安全で信頼性の高い建物となります。
【電気をつくり出す家づくり】
太陽光パネルを屋根にのせることで、太陽光を効率的に捉え、電気エネルギーをつくり出します。効率の向上や技術の向上により、太陽光パネルはますます一般的に。
【第三者施工品質監査チェック】
NEXTSTAGE GROUPが提供する、最先端の現場施工品質監査システムを導入。国家資格(一級建築士)を有する『現場監査士』が第三者的立場から監査を実施し、安心の家づくりをお約束します。
【住宅瑕疵担保責任保険】
お引き渡しから10年間に基本構造部分に雨漏りや住宅の傾きなどの瑕疵が発見された場合、お客様の負担無しに修繕します。加えて「瑕疵担保責任保険」にも加入しています。
これにより、例えば弊社が倒産した際にお客様の修繕等に支障が発生した場合でも保険法人に直接補修費用(保険金)を請求することが可能となります。
【建築基準法をはるかに超える自社検査】
虎の巻とも呼ばれる自社での検査チェックシートにて、設計士・施工管理士ともに細かくチェックしていきます。
【自社施工基準と第三者施工品質監査システム導入業者は全体のたった1%!】
建築各社の現場品質対応は自社による社内検査が主です(建築基準法や共通仕様書による、最低基準の検査が基本)。
我が社は建築基準法をはるかに超える自社施工基準を持ち、外部住宅検査会社による現場施工品質検査を実施。
どちらも導入している事業主は全体のわずか1%。私たちが一つ一つの家づくりに妥協のない品質を確保している証です。
AREA周辺施設
阪急京都線「高槻市駅」駅 バス約12分
高槻市立桃園小学校 徒歩約14分
高槻市立第一中学校 徒歩約20分
サンディ高槻高西店 徒歩約11分
ローソン高槻下田部町二丁目店 徒歩約12分
高槻津之江郵便局 徒歩約6分
OVERVIEW物件概要
- 価格
- 4,580万円
- 所在地
- 高槻市南庄所町
- 交通
- 阪急京都線「高槻市駅」駅 バス約12分
- 構造
- 木造軸組3階建
- 学校区
- 桃園小学校校区
第一中学校校区
| ID | 予約日時 | カレンダー | 状態 |
|---|
前日や直前のご予約はお手数ですがお電話で0798-65-5055までご連絡下さい。












