新築戸建 セセラの家 西宮市満池谷町Ⅱ 6号地(全10区画)
満池谷町|サロンのある家
◆【サロンスペースあり】1階に5.2帖の自由空間
◆【収納充実】SCL・パントリー・納戸・各所CLで片付けやすい間取り
◆【2ボウル洗面】朝の支度も快適に、並んで使える広々洗面台
◆【3駅利用可】夙川・苦楽園口・さくら夙川の3駅徒歩圏
◆【教育環境◎】大社小学校徒歩2分/中学校や保育園も徒歩圏内
西宮市満池谷町に誕生した満池谷町Ⅱ・6号地は、ゆとりある空間設計と暮らしやすさを兼ね備えた2階建て・3LDK+サロンスペースの邸宅。
敷地面積は256.67㎡(約77.64坪)、延床面積は143.16㎡と、都市部では希少なボリュームある住まいです。
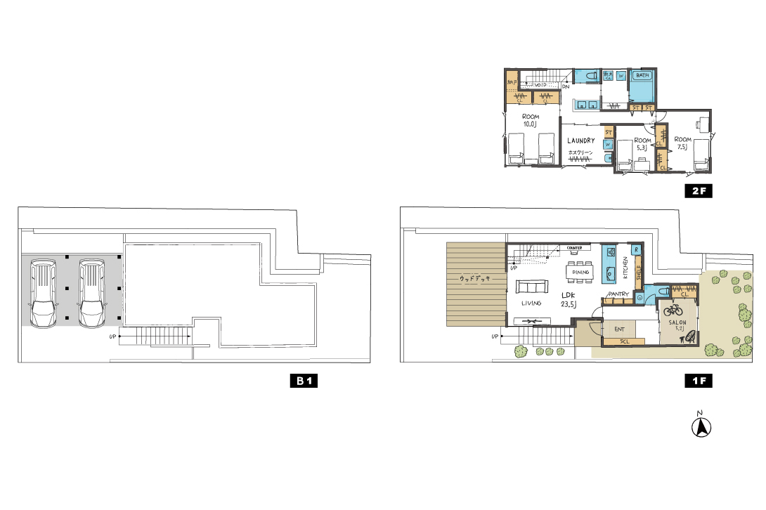
1階は23.5帖のLDKを中心とした生活空間。
リビングは南向きに配置され、明るく開放的。
キッチンは対面スタイル風で、ダイニング〜パントリー〜玄関側までぐるりと回遊できる設計。
動線に無駄がなく、忙しい日常でもストレスのない暮らしを実現します。
加えて、1階には5.2帖のサロンスペースを確保。
床がタイル敷きで、自転車やアウトドア用品の収納、趣味の部屋、在宅ワーク用の書斎など、活用できる多目的空間です。
エントランスからの独立動線が確保されているため、生活空間との切り分けもスムーズです。
2階には洋室3部屋を配置。
主寝室には大型収納を備え、その他の部屋にもクローゼット完備。
家族構成やライフスタイルの変化にも柔軟に対応できる間取りです。
ランドリールームと洗面・リネン庫・納戸が近接し、家事効率の高い動線が実現されている点も魅力。
洗濯・干す・しまうが1フロアで完結でき、ストレスフリーな家事動線を実現。
隣接する2ボウルの洗面台は家族が並んで使えるため、朝の支度も混雑せず、共働き世帯やお子さまのいるご家庭にもうれしい仕様です。
収納も豊富で、1階のシューズクローゼット、キッチン横のパントリー、クローゼットや納戸など、片付けやすさにこだわった設計が光ります。
周辺環境も良好。
阪急「夙川」「苦楽園口」駅、JR「さくら夙川」駅が徒歩圏にあり、3駅利用可能な好立地。
大社小学校へは徒歩2分、大社中学校へは徒歩17分と、教育施設も近く子育てにも適した環境です。
周辺にはスーパーや公園、医療施設も揃っており、落ち着いた住宅街での便利な暮らしが叶います。
PLAN間取図
- PLAN
- 3LDK
- 土地面積
- 256.67㎡
- 床面積
- 1階 66.01㎡
2階 77.15㎡
合計 143.16㎡
- その他私道負担
- 22.7425㎡

LAND PLAN区画図
- 土地面積
- 256.67㎡
- 私道負担
- 22.7425㎡
SPEC仕様
【床下の冷たい空気を完全シャットアウト】
床からくる冷たい空気を取り込まないようにする為、床を断熱。
床暖房をいれなくても快適な暮らしを可能にしました。
【気密性の高い断熱材】
吹き付けウレタンフォームは、細い隙間にも断熱材を吹き付けることができるため、断熱性に加え高い気密性が確保できる。屋根と壁内に充填することで、外気温に左右されない上、気密性を高めることもできます。その為、室内の温度を保つことができ、冷暖房効率が高まり、1年中快適に過ごすことができます。
【気密性の高い断熱】
発泡ウレタンフォームによる吹付断熱施工は、従来のグラスウールを敷き詰める工法では避けられなかった断熱材の隙間や継ぎ目をなくし、断熱性能を高める構造。現場発泡なので構造躯体にピッタリ密着し隙間ができにくく、温度変化にも柔軟に対応。長期的に劣化しにくいといった特徴も。
【窓を開けるよりも快適!室内の温度と湿度を変えずに換気が可能】
第一種全熱交換型換気システムは、外気を吸排気する際に、熱交換を行うことで外気温の影響を受けずに室内の空気をキレイにすることができる。外気温を室内温度に近づけて室内に取り込む為、熱ロスが少なくランニングコストを抑えます。全部屋の空気を確実に入れ替えてくれる為、VOCを除去し、換気不足のCO2上昇による集中力、記憶力の低減を抑えてくれるので、お子様の勉強もはかどります。
【結露が生じにくい】
優れた断熱性能と気密性能を兼ね備えた樹脂サッシ窓。アルゴンガス入りペアガラス (Low-Eガラス)と高断熱樹脂フレームで、熱貫流率をとことん低減。住宅のエネルギー効率を大幅に向上させ、さらに室内の結露を軽減することも可能です。結露を防ぐことでカビ・ダニの発生も抑えるので、アレルギーや喘息症状がある方におすすめです。
【断熱性能が高い玄関扉】
「ヴェナートD30 D2仕様」は、断熱性能が高いグレードの玄関扉です。
意匠性を確保しながら、北海道のような寒冷地でも外気温に左右されない熱損失計数をクリア。
【少しの隙間も逃さずブロック】
木造在来工法により発生する柱と床の隙間をひとつひとつ全てコーキングすることで隙間を埋め、建物内の気密性を高めています。
【配管周りの気密性を簡単&確実に高める】
配管周りに伸縮加工したポリエチレン素材のドームパッキンなどをパイプとの密着部分に設置し、さらに防水テープを貼り、気密性を高めています。
【床一面で家の重みを支える】
地盤全体にまんべんなく鉄筋コンクリートを流し込んでつくる『ベタ基礎』。柱や壁はもちろん床面部分も分厚い基礎で支えられているので、建物の重さが分散されやすく耐震性にも優れています。地面全体をコンクリートで覆っているため、湿気が建物に伝わりにくく、シロアリ被害も防ぎやすくなっています。
【躯体を壊さずメンテナンス可能】
サヤ管工法は、あらかじめ管を通すルートを作っておくことで、経年により設備機器などの交換が生じた際に、躯体を壊さずに配管のし直しができる画期的な工法です。
【建物の倒壊から身を守る『耐震等級3』】
建物の耐震性能は、国が定めた耐震等級によって評価されます。等級は1から3まであり、最高ランクの等級3は等級1の1.5倍の耐震性能を備えています。
等級3の建物は、震度6強から7の大地震でも軽い補修程度ですみ続けられるレベルで、消防署や警察署などの防災施設にも採用されています。
【地震から家族と家を守る『制振ダンパー』】
『耐震』で強められた家は、地震による倒壊からは家を守ることができますが、揺れに対するダメージからは家を守ることはできません。
それほど規模の大きくない地震や大地震時の余震等が繰り返し被災すると大地震と同程度のダメージを受けてしまいます。これらに対応する為、「セセラの家」は油圧式制振ダンパーを採用しています。
大きな地震エネルギーを吸収し、衝撃を和らげ、家へのダメージを大きく軽減させます。高品質・高性能な油圧式制振ダンパーが、お客様の家をしっかりと守ります。
【耐震等級だけで満足していませんか?】
現在の建築基準法では木造2階建・延床面積500m2以下の建築物においては、確認申請時の構造計算が義務化されていません。義務でないならばできるだけシンプルな計算方法が良いと構造計算を簡易に済ましている会社は全体の80%にも及ぶと言われています。
「セセラの家」では1棟1棟、建物にかかる荷重の計算、材料の強度特性の評価、構造全体の解析を行い、各部材の応力が許容範囲内であるかを確認します。この計算を行うことで、安全で信頼性の高い建物となります。
【第三者施工品質監査チェック】
NEXTSTAGE GROUPが提供する、最先端の現場施工品質監査システムを導入。国家資格(一級建築士)を有する『現場監査士』が第三者的立場から監査を実施し、安心の家づくりをお約束します。
【住宅瑕疵担保責任保険】
お引き渡しから10年間に基本構造部分に雨漏りや住宅の傾きなどの瑕疵が発見された場合、お客様の負担無しに修繕します。加えて「瑕疵担保責任保険」にも加入しています。
これにより、例えば弊社が倒産した際にお客様の修繕等に支障が発生した場合でも保険法人に直接補修費用(保険金)を請求することが可能となります。
【建築基準法をはるかに超える自社検査】
虎の巻とも呼ばれる自社での検査チェックシートにて、設計士・施工管理士ともに細かくチェックしていきます。
【自社施工基準と第三者施工品質監査システム導入業者は全体のたった1%!】
建築各社の現場品質対応は自社による社内検査が主です(建築基準法や共通仕様書による、最低基準の検査が基本)。
我が社は建築基準法をはるかに超える自社施工基準を持ち、外部住宅検査会社による現場施工品質検査を実施。
どちらも導入している事業主は全体のわずか1%。私たちが一つ一つの家づくりに妥協のない品質を確保している証です。
AREA周辺施設
阪急神戸線「夙川」駅 徒歩約14分
阪急甲陽線「苦楽園口」駅 徒歩約14分
JR神戸線「さくら夙川」駅 徒歩約16分
大社小学校 徒歩約2分
大社中学校 徒歩約17分
コープ夙川 徒歩約7分
夙川グリーンタウン 徒歩約17分
エビスタ西宮 徒歩約17分
西田公園 徒歩約5分
OVERVIEW物件概要
- 価格
- 未定
- 所在地
- 西宮市満池谷町二番
- 交通
- 阪急神戸線「夙川」駅 徒歩約14分
阪急甲陽線「苦楽園口」駅 徒歩約14分
JR神戸線「さくら夙川」駅 徒歩約16分
- 総区画数
- 全10区画
- 学校区
- 大社小学校校区
大社中学校校区
| ID | 予約日時 | カレンダー | 状態 |
|---|
前日や直前のご予約はお手数ですがお電話で0798-65-5055までご連絡下さい。










